Accéder au contenu principal

DRÂ

DAMIEN ROCHER ARCHITECTE

  • Accueil
  • Projets
  • Agence

EVRD

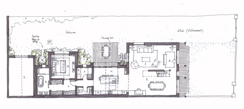
EVRD – Extension d’une maison de bord de mer I Pornichet I 2024

Publié dans Maisons individuelles

Navigation des articles

Article précedent RLQ
Article suivant SGDLM

Agence

13 avenue du pain bénit

44250 Saint-Brevin-les-Pins

Contact

(e) agence@dra-architectes.fr

(t) 02 40 27 02 36

 

  • Voir le profil de damien-rocher-20a29633a sur LinkedIn
2026 DRÂ
Site Web créé avec WordPress.com.
  • S'abonner Abonné
    • DRÂ
    • Vous disposez déjà dʼun compte WordPress ? Connectez-vous maintenant.
    • DRÂ
    • S'abonner Abonné
    • S’inscrire
    • Connexion
    • Copier lien court
    • Signaler ce contenu
    • Voir la publication dans le Lecteur
    • Gérer les abonnements
    • Réduire cette barre
 

Chargement des commentaires…